Bilocale in vendita

Chivasso, Via Momo - Ospedale
€ 97.000
2 locali 2 locali
50 Mq 50 Mq
1 bagno 1 bagno

Bilocale in vendita

Chivasso, Via Momo - Ospedale

Descrizione annuncio

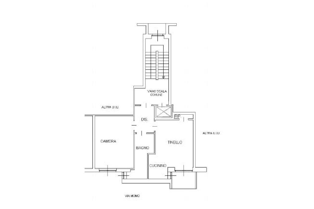
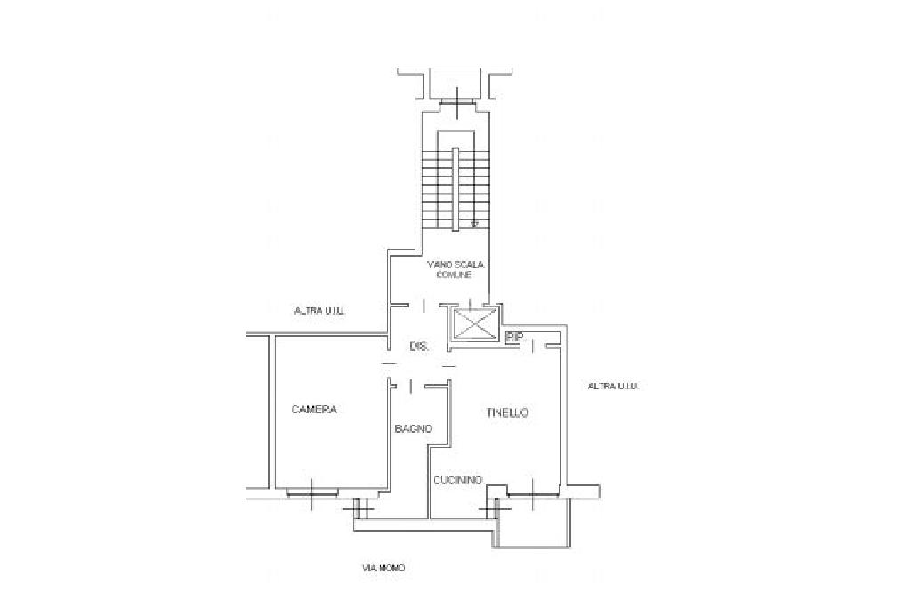
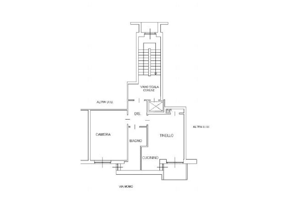
Nelle vicinanze della stazione e dell'ospedale, proponiamo un accogliente appartamento bilocale in vendita. Situato al primo piano di un edificio dotato di ascensore, ideale per chi cerca una soluzione abitativa funzionale e ben organizzata. L'appartamento, parzialmente ristrutturato, si compone di una luminosa camera da letto, un bagno e un soggiorno che si apre su un balcone, perfetto per momenti di relax all'aperto. La presenza dell'aria condizionata garantisce comfort in ogni stagione. Questa soluzione è perfetta per chi desidera vivere in una zona ben servita, con la praticità di un appartamento al piano basso. Un'opportunità da non perdere per chi cerca un'abitazione accogliente e ben posizionata.

Mostra tutto

Nelle vicinanze

Trasporto pubblico Trasporto pubblico
stazione di Chivasso
stazione di Chivasso
250 m
Chivasso (Posta)
Chivasso (Posta)
240 m
Chivasso (P.za del Popolo)
Chivasso (P.za del Popolo)
240 m
Ricariche auto elettriche Ricariche auto elettriche
Chivasso Ceresa | EnelX
260 m
Chivasso Blatta | Enelx
820 m
CHIVASSO Gerbido | ENELX
900 m
evway Bennet Chivasso
940 m
Eneldrive Centro Commerciale Chivasso
970 m
Scuole Scuole
Scuole
540 m
Liceo Classico-scientifico "I. Newton"
700 m
Scuola media "Demetrio Cosola"
860 m
Farmacia Farmacia
Farmacia
350 m
Dietosan
480 m
Ospedali Ospedali
Ospedali
230 m
Supermercati Supermercati
Supermercati
190 m
Il Gigante
590 m
LIDL
640 m
Eurospin
760 m
Carrefour
780 m
Negozi Negozi
OVS
610 m
Bar Bar
Le Bionde
130 m
Buffet Stazione
200 m
Bar
360 m
Duomo
480 m
La Piazzetta
480 m
Ristoranti Ristoranti
Il Buffet
190 m
Aquila Nera
650 m
La Voglia
670 m
italo brasiliano
760 m
Pizzeria al vecchio mulino
830 m
Mostra tutto

Caratteristiche

Rif.:
61118703
Piano:
1 di 7 con ascensore (Piano basso)
Balconi:
1
Camere da letto:
1
Arredamento:
Assente
Condizionamento:
Centralizzato
Mostra tutto
Prezzo Prezzo
€ 97.000
Rata mutuo Rata mutuo
€ 461 / mese
Spese annue Spese annue
€ 1.000
Proponi il tuo prezzoProponi il tuo prezzo

Classe Energetica

G
G
G
G
G
G
G
G
G
EP globale non rinnovabile:
316.32 kW h/m² anno
EP globale rinnovabile:
76.86 kW h/m² anno
EP invernale del fabbricato:
EP estiva del fabbricato:
Anno di costruzione:
1960
Riscaldamento:
Centralizzato
Tipo impianto:
A radiatori
Tipo alimentazione:
Metano

Ti interessa visionare l'immobile?

Fissa un appuntamento  Fissa un appuntamento

Richiedi informazioni

Clicca su Leggi per aprire l'informativa
* Questi campi sono obbligatori

Calcola il tuo mutuo

Semplice e senza impegno
Anticipo

( % )
Mutuo

( % )

pochi semplici passi

inserisci i tuoi dati
Questionario completato
Grazie per aver richiesto un appuntamento senza impegno con un nostro Consulente del Credito e Assicurativo.

Hai inserito correttamente tutti i dati necessari e a breve riceverai una e-mail con un link da convalidare per inviare i tuoi dati.
Affiliato
Studio Chivasso Uno Sas
P.zza Della Repubblica, 5 10034 Chivasso (TO)

Il nostro staff


  • Christian Chiartano
    Affiliato

  • Giada Chiartano
    Coordinatrice
P.zza Della Repubblica, 5 10034 Chivasso (TO)
Zona: Chivasso-Centro-Duomo-Stazione
Mostra su mappa
Orari: Da lunedì a venerdì 09-12.30 e 14,30 - 19,30. Il sabato chiusura ore 19.00
Affiliato
Studio Chivasso Uno Sas
P.zza Della Repubblica, 5 10034 Chivasso (TO)

2026 Tecnocasa Franchising S.p.A. - P. IVA 08365160152 - Via Monte Bianco 60/A 20089 Rozzano (MI). Ogni agenzia ha un proprio titolare ed è autonoma. Privacy policy | Policy utilizzo | Cookie policy